Quelles sont les étapes d’études d’un projet d’architecture d’intérieur ?
02/12/2024
La prise de connaissance du projet
Un projet d’architecture d’intérieur nécessite une période de préparation de 3 mois en moyenne. Ce délai peut varier en fonction de la surface, de la complexité du projet et du temps requis par le client pour réfléchir.
Un premier échange téléphonique permet à l’architecte d’intérieur de prendre connaissance du projet, des besoins et envies de la personne qui le porte, ainsi que le budget dont celle-ci dispose.
Il évalue la complexité du projet : il peut alors orienter le client vers un architecte DPLG ou vers un décorateur.
Dans le cas où le projet correspond à ses domaines de compétences, il propose au client dans un premier temps une ou plusieurs esquisses.
L’architecte d’intérieur commence sa mission dès qu’il réalise sur demande des propositions d’aménagement. Une lettre de mission est établie et signée entre les parties.
La phase d’esquisse
Pour l’architecte d’intérieur, l’esquisse consiste à préparer sous la forme de plans et de maquette 3D, un éventail de solutions d’aménagement à son client, en se basant sur les souhaits qu’il exprime et sur les possibilités offertes par le lieu concerné.
Ce travail de recherche, qui constitue une part prépondérante du métier d’architecte d’intérieur, est payant : il ne peut se faire qu’après avoir écouté attentivement les attentes du client, visité le lieu concerné et relevé l’ensemble des cotes intérieures.
Après avoir exploré toutes les options d’aménagement, l’architecte d’intérieur propose alors à son client une ou plusieurs idées sous la forme de plans à partir de son expérience et de ses connaissances.
En option, il est possible d’inclure une estimation du coût total du projet dans l’esquisse, mais le prix final peut varier considérablement selon les matériaux sélectionnés. Certains architectes d’intérieur ne proposent qu’une seule idée, sans alternative. Un professionnel qui dessine plusieurs esquisses démontre sa capacité à s’ajuster aux besoins de ses clients et à leur offrir une plus grande liberté de décision.
La validation du projet
Le projet final, approuvé par le client, rassemble généralement des idées issues des multiples propositions initiales.
L’architecte d’intérieur retranscrit l’esquisse retenue sous la forme d’un plan détaillé. Si nécessaire, il fournit, en plus, une ou plusieurs vues du projet en 3D et en couleur.
De cette manière, il livre au client un avant-projet définitif qui expose en détail avec des plans à l’appui toutes les réalisations prévues et indique sur demande le coût prévisionnel des travaux.
Dans le cas de chantiers plus importants, l’architecte d’intérieur fournit à la fois un avant-projet sommaire et un avant-projet détaillé.
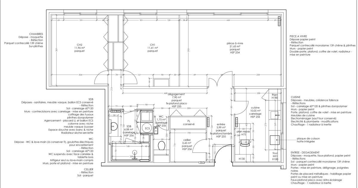
Plan état futur & description sommaire des travaux
4 versions d'implantation de cuisine

Le client signe ensuite avec l’architecte d’intérieur un contrat de maîtrise d’œuvre qui a pour responsabilité de superviser la réalisation du projet. Le prix de l’esquisse est déduit du montant total des frais qui seront engagés. Cependant, le client a également la possibilité de conserver l’esquisse finalisée de son projet et de ne pas entreprendre les travaux.
Le choix des matériaux et des équipements
Le choix des matériaux et des équipements (meuble-vasque, baignoire, éclairages…) modifie les plans et précise progressivement le projet final. L’architecte d’intérieur précise donc généralement les matériaux pendant qu’il élabore les plans détaillés, en s’inspirant des préférences exprimées par ses clients. Avec une grande expertise en matériaux et en composants, il est surtout force de proposition pour créer des intérieurs uniques avec sobriété et originalité.
Envie d’en savoir plus ?
Vous souhaitez me confier votre projet ?
Décrivez-le en quelques mots et je vous contacterai dans les meilleurs délais !
Nous pourrons ensuite faire connaissance lors d’un rendez-vous à votre domicile ou dans vos locaux ou encore via un rendez-vous téléphonique.
Je serai ravie d’échanger avec vous !

35650 Le Rheu

Demande de contact prise en compte.